You are using an outdated browser version not supported by this website.
Click here to upgrade your browser
5,520 products with technical literature, drawings and more from leading suppliers of NZ architectural materials.
Case studies, new products and product news from leading suppliers of NZ architectural materials.
Blogs for architectural specifiers, offering product, design
and business advice.
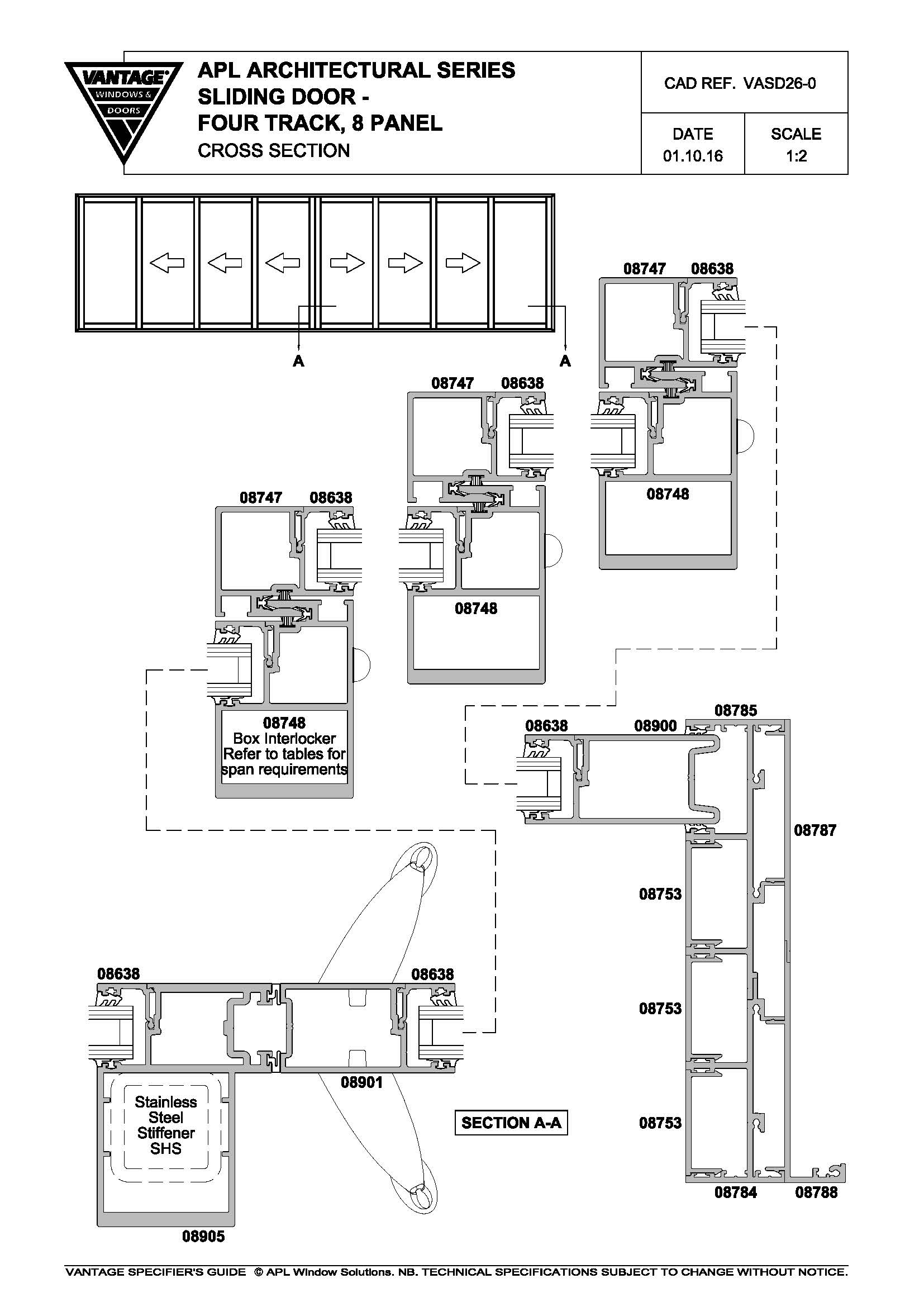
Sliding doors slide on an outside track and can meet at 90 degree corners without the need for a corner post. For most configurations a fixed side panel is required. However, a bypass slider option is available where two or three panels move.
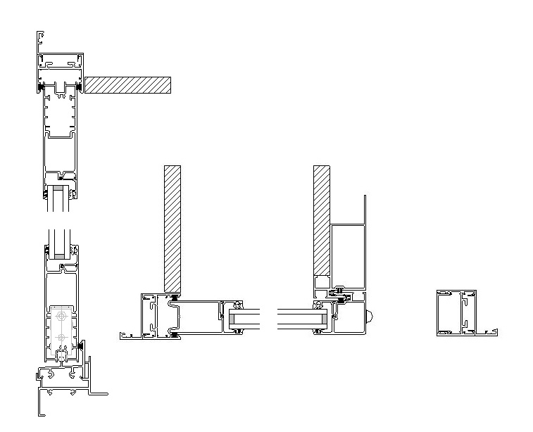
The sliding door system has also been designed for convenient use as a cavity slider or for sliding back over a wall.
Vantage Windows & Doors supplies modern aluminium profiles as one of the national brands of APL Window Solutions, New Zealand’s largest window systems company.
David Waters
New and updated architectural products, design solutions, inspiration, technical advice and more when you sign up for EBOSS.


